Uitkijk Exterieur Resized Type 02 House 21
Uitkijk Exterieur Resized Type 02 House 21
Type02 Cam 03 resized
Uitkijk Tussenhuis type2 interieur002 resized
Uitzicht uitkijk keuken tussenhuis

Uitkijk 21

Verkocht
Type Drie-onder-een-kap huis
Buurt Uitzicht
Woonoppervlakte 152 m2
Perceeloppervlakte 175 m2
Verdiepingen 3
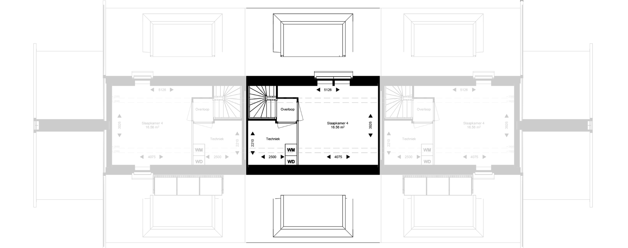
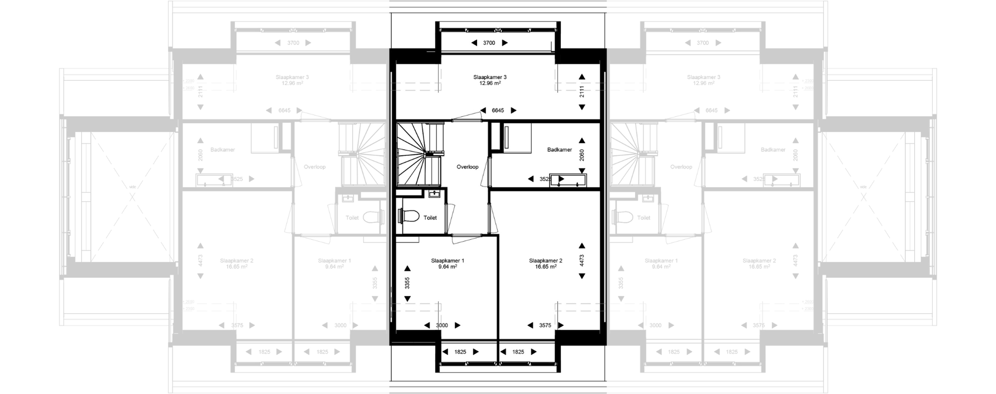
Aantal kamers 5 (waarvan 4 slaapkamers)
Oplevering Verwacht kwartaal 1 - 2026
Prijs Vanaf 720.000
Overzicht
Parkeren
in de buurt
Bijzonder
Energieneutraal, aparte berging
Orientatie
Oost
Ligging
Kleinschalig eiland, gelegen aan groen binnenhof

Als onderdeel van een charmante drie-onder-één kap straalt Uitkijk 21 unieke stijl uit. De gemêleerde grijze bakstenen op de begane grond, gecombineerd met vlakke donkergrijze keramische dakpannen zijn kenmerkend voor de type Uitkijk huizen.

De voordeur en veranda grenzen direct aan het openbare gebied, wat bijdraagt aan een gevoel van gemeenschap en verbondenheid. Vanaf dit verhoogde binnenplein strekt zich een betoverend uitzicht uit over de omliggende buurten van dit woongebied, wat de naam 'Uitkijk' perfect verklaart.

Geniet van uw eigen achtertuin, omlijst door weelderige groene hagen, en maak gebruik van de praktische berging. Parkeer uw auto in de groene parkeerhoven en geniet van de rust van een autovrije binnenruimte.

Kenmerken
  • Gelegen aan een groen binnenerf
  • Fijne achtertuin gekaderd door hagen
  • Aparte berging
  • 4 Slaapkamers
  • Nagenoeg energieneutraal
Kenmerken

Groene interactie en gekaderde tuinen


Op het verhoogde groene hart van Uitzicht staan negen drie-onder-één-kaphuizen, een eerbetoon aan traditionele brinkdorpen. Profiteer van een betoverend uitzicht en privé achtertuinen.

Wandel mee over Uitzicht door de 360 ℃ video te bekijken en ontdek hoe wonen op Uitzicht kan zijn!

Plattegronden
Documenten
Optiebeschrijving Type
Alle documenten zip-file
01 Model Koopovereenkomst Bouwkavels Uitzicht pdf
02 Algemene Voorwaarden bouwkavels Uitzicht pdf
04 Model aanneemovereenkomst Uitzicht pdf
04a Aanhangsel modelovereenkomsten inwerkingtreding wkb pdf
08 Situatietekening pdf
10 Brochure Klimaatgarant pdf
11 Brochure Middelkoop Uitzicht pdf
05 Contracttekening Uitkijk 20 tm 22 pdf
06 Contracttekening bergingen pdf
07 Technische omschrijving Uitkijk pdf
Documenten
Uitzicht op kaart
Uitzicht

Langs de hoofdentree van Wilgenrijk komt de nieuwe buurt Uitzicht. Door het omringende water en het groene binnenhof met slingerende wandelpaden, kleine parkeerbuffers omzoomd door groen, is het een knus en bijzonder eiland. De huizen krijgen een sfeervol en straks design met veel natuurlijke materialen en u woont er met hoge comfort en luxe.

De buurt biedt ruimte aan in totaal 28 huizen, in vier verschillende typen: Aanblik, Perspectief, Vergezicht en Uitkijk.

De Buurt
Geef uw voorkeur door voor uw favoriete huis